DESCARGAS

 INTRODUCCIÓN

  Ficha de Producto

  Submittal

  Datos de Ingenieria

  Instalación

 Especificación  Sugerida


Rejilla perforada de inyección o retorno para aplicaciones en donde se requiera un nivel de seguridad de medio a alto. Están fabricadas en placa de lámina de acero (espesor 3/16") o acero inoxidable (Calibre 10) con perforaciones redondas de 5/16", separadas 7/16" entre centros desfasados. Con un área libre de aproximadamente 46%
Se provee con una manga de 6",8",10",12"ó 18" la cual se une a la rejilla por medio de soldadura continua bajo los estándares de la ASTM.
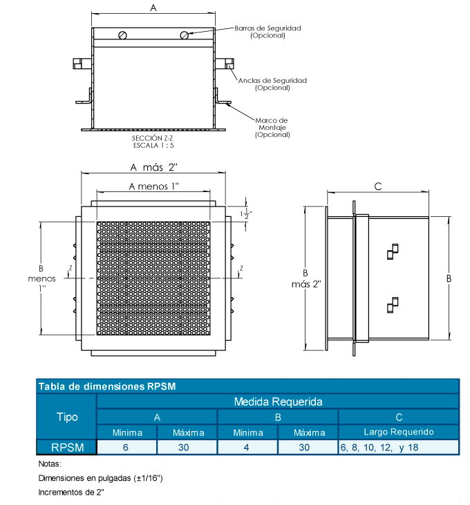
Las medidas disponibles son desde 6" x 4" hasta 30" x 30". Para máxima seguridad se pueden añadir como accesorios las anclas para concreto, las barras de seguridad y un contramarco de ajuste posterior de 1 ½" x 1 ½" x 3/16".
El acabado es en pintura electrostática en colores de línea : blanco, blanco tablaroca o negro mate.
En acero inoxidable pulido satinado P4.

  CARACTERÍSTICAS

- Rejilla perforada de seguridad de inyección o retorno.
- Placa de lámina de acero (espesor 3/16") o acero inoxidable (calibre   10) con perforaciones redondas de 5/16" separadas 7/16" entre centros   desfasados.

- Manga en lámina de acero (espesor 3/16") o acero inoxidable (calibre   10)
- Barras de seguridad de 3/4"
- Contramarco de ajuste de 1 ½" x 1 ½" x 3/16".

 DIMENSIONES  MATERIALES y ACABADOS

- Desde 6"x 4" hasta 30"x30".

- Fabricado en lámina de acero o acero inoxidable 304 - Colores de línea: blanco, blanco tablaroca o negro mate.
- Pulido P4 (únicamente acero inoxidable).

    VERSATILIDAD

- Bóvedas en General.

- Centros de Readaptación Social.

- Casas de Empeño.

- Áreas de Acceso Limitado.

- Edificios Industriales.

 

    ACCESORIOS
  

- Barras de seguridad de ¾" apartir de dimensiones de 8 pulgadas.

- Anclas para concreto.

- Contramarco de ajuste posterior de 1 ½" x 1 ½" x 3/16".

    PLANO DE DIMENSIONES
    DIAGRAMA DE INSTALACIÓN
    ESPECIFICACIÓN SUGERIDA

Las rejillas de seguridad serán de la marca Innes modelo RPSM y estarán fabricadas con una placa frontal de lámina de acero con un espesor 3/16" o acero inoxidable 304 calibre 10 con perforaciones redondas de 5/16" separadas 7/16" entre centros desfasados. Con un área libre de aproximadamente 46%. La rejilla llevará una manga según especificaciones del plano que podran ser de 6",8",10",12"ó 18" y estará unida a la placa anterior por medio de soldadura continua bajo los estándares de la ASTM.
Las medidas serán desde 6" x 4" hasta 30" x 30". Para máxima seguridad se añadirán como accesorios las barras de seguridad de ¾" en acero ASTM templado de dureza B-90 Rockwell resistente a la abrasión, anclas para concreto de lámina de acero (3/16") o acero inoxidable 304 (calibre 10) soldadas a la manga y un contramarco de ajuste posterior de 1 ½" x 1 ½" x 3/16" construidos de lámina de acero (3/16") o acero inoxidable 304 (calibre 10).
El acabado será en pintura electrostática en colores de línea : blanco, blanco tablaroca o negro mate. Para las rejillas de acero inoxidable el acabado será pulido satinado P4.

 

 

Mapa de Sitio      l      © Innes Aire 2010      l      Contacto