|
 |
|
 |
DESCARGAS |
INTRODUCCIÓN |
Ficha de Producto
Submittal
Datos de Ingenieria
Instalación
Especificación Sugerida
|
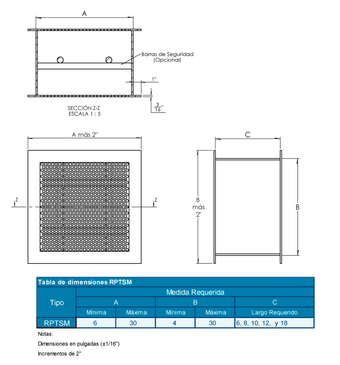
Rejilla de transferencia para aplicaciones en donde se requiera un alto nivel de seguridad. Están fabricadas en placa de lámina de acero (espesor 3/16") o acero inoxidable (Calibre 10) con perforaciones redondas de 5/16" separadas 7/16" entre centros desfasados. El tamaño de perforación provee un área libre ideal al mismo tiempo que minimiza la posibilidad de que se pueda introducir cualquier objeto al espacio ocupado.
Se provee con una manga que puede ser de 6",8",10",12"ó 18" y se une por medio de soldadura continua bajo los estándares de la ASTM.
La rejilla RPTSM esta diseñada para instalarse ahogada en el concreto por lo que su remoción sería extremadamente difícil sin el uso de herramientas apropiadas.
Las medidas disponibles son desde 6" x 4" hasta 30" x 30". Para máxima seguridad se pueden añadir como accesorios las barras de seguridad de ¾" y anclas para concreto.
El acabado es en pintura electrostática en colores de línea : blanco, blanco tablaroca o negro mate.
En acero inoxidable el acabado es pulido P4 satinado.
|
|
CARACTERÍSTICAS |
- Rejilla de seguridad para transferencia.
- Placa frontal y posterior de lámina de acero (espesor 3/16") o acero inoxidable (calibre 10) con perforaciones redondas de 5/16" separadas 7/16" entre centros desfasados. |
- Manga en lámina de acero (espesor 3/16") o acero inoxidable (calibre 10) de 6”, 8”, 10”, 12” o 18” de longitud.
- Barras de seguridad de 3/4"
- Se instala ahogada en muro de concreto. |
|
DIMENSIONES |
MATERIALES y ACABADOS |
- Desde 6"x 4" hasta 30"x30". - Manga de 6”, 8”,10”,12” o 18” de longitud.
|
- Fabricado en lámina de acero o acero inoxidable 304.
- Colores de línea: blanco, blanco tablaroca o negro mate.
- Pulido P4 (únicamente acero inoxidable). |
|
VERSATILIDAD |
- Bóvedas en General.
- Centros de Readaptación Social.
- Casas de Empeño.
- Áreas de Acceso Limitado.
- Edificios Industriales.
|
 |
|
ACCESORIOS |
- Barras de seguridad de ¾".
- Anclas para concreto.
|
PLANO DE DIMENSIONES |
 |
DIAGRAMA DE INSTALACIÓN |
 |
ESPECIFICACIÓN SUGERIDA |
Las rejillas de seguridad de transferencia serán de la marca Innes modelo RPTSM y estarán fabricadas con una placa frontal y una posterior de lámina de acero con espesor 3/16" o acero inoxidable 304 en calibre 10 con perforaciones redondas de 5/16", separadas 7/16" entre centros desfasados. Contarán con un área libre de aproximadamente 46%. La rejilla llevará una manga según especificaciones del plano de 6", 8",10",12"ó 18" y estará unida a la placa anterior por medio de soldadura continua bajo los estándares de la ASTM.
Las medidas podrán ser desde 6" x 4" hasta 30" x 30". Para máxima seguridad se añadirán los siguientes accesorios: barras de ¾" de acero ASTM templado de dureza B-90 Rockwell resistente a la abrasión y anclas para concreto de lámina de acero (3/16") o acero inoxidable 304 (calibre 10) soldadas a la manga.
El acabado será en pintura electrostática en colores de línea: blanco, blanco tablaroca o negro mate. Para las rejillas de acero inoxidable el acabado será pulido satinado P4. |

|
|