DESCARGAS

INTRODUCCIÓN

  Ficha de Producto

  Submittal

 Datos de Ingeniería

  Instalación

 Especificación  Sugerida


La compuerta de Alto Desempeño de Innes, modelo CBAD cumple los requisitos de ANSI/AMCA Standard 500-D-12 "Laboratory Methods of Testing Dampers for Rating".
La ingeniería de producto y los criterios para la realización de pruebas aseguran su desempeño acorde a las estrictas exigencias de las instalaciones que buscan lograr eficiencia energética, reducir costos de operación y mejorar la calidad del aire interior.
La compuerta CBAD marca Innes cumple con altos estándares de fabricación y ofrece un mínimo porcentaje de fuga así como valores bajos de caída de presión, por lo que es apta para instalarse en aplicaciones comerciales e industriales.
La Compuerta CBAD tiene una clasificación 2 para una presión de alimentación de 1" y una clasificación 1 para presiones de alimentación de 4" y 8", de acuerdo con la tabla número 3 del documento AMCA 511-10. (Ver resultados en datos de ingeniería).
La Compuerta de alto desempeño modelo CBAD es adecuada en aplicaciones donde el porcentaje de fuga es mínimo; es apta para regular el flujo de aire o aislar un espacio dentro un sistema, así como para la toma de aire exterior.

  CARACTERÍSTICAS

- Alto Desempeño.
- Caída de presión baja.
- Bajo porcentaje de fuga.
- Ahorro de energía.

- Hojas Opuestas tipo 3V.
- Sellos laterales en marco
- Sellos en el borde de las hojas.
- Actuador montado de fábrica.
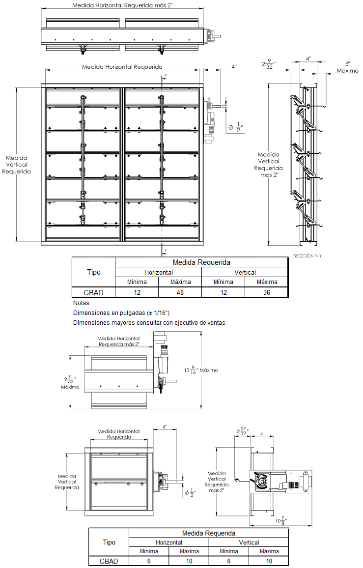
 DIMENSIONES   MATERIALES y ACABADOS

-Desde 6" x 6" hasta 48" x 36", en incrementos de 2".

- Marco y hojas fabricadas en lámina de acero galvanizado calibre 14.
- Eje de acero galvanizado de 1/2" de diámetro para acoplar actuador.
- Sellos laterales de acero inoxidable.
- Sellos en hojas de PP/TPV.
- Bujes de bronce.

    VERSATILIDAD

- Procesos Industriales.
- Hospitales y Clínicas
- Industria Alimenticia.
- Laboratorios.
- Hoteles.

 

 

 
    ACCESORIOS
- Actuador.

    PLANO DE DIMENSIONES
    DIAGRAMA DE INSTALACIÓN
    ESPECIFICACIÓN SUGERIDA


La Compuerta de alto desempeño será de la marca Innes modelo CBAD estará disponible con hojas opuestas tipo 3V fabricadas en lámina de acero galvanizado calibre 14 y contarán con un marco rígido a 90° de 4" de ancho fabricado en dos piezas en lamina de acero galvanizado calibre 14, bujes de latón, eje de acero galvanizado de ½" de diámetro para acoplar actuador, los sellos laterales serán de acero inoxidable y los sellos de los bordes de las hojas serán de polipropileno vulcanizado. (PP/TPV).

Las medidas disponibles serán desde 6" x 6" hasta 48" x 36" en una sola pieza, en incrementos de 2".

Las Compuertas CBAD contarán con el actuador instalado en fábrica, la capacidad del actuador dependerá de las dimensiones de la Compuerta.

 

 

   EJEMPLO: CBADFA 48X24 PS 

 

Mapa de Sitio      l      © Innes Aire 2010      l      Contacto